消防設計——氣體滅火系統設計
文章出處:本站 人氣:發表時間:15-10-30
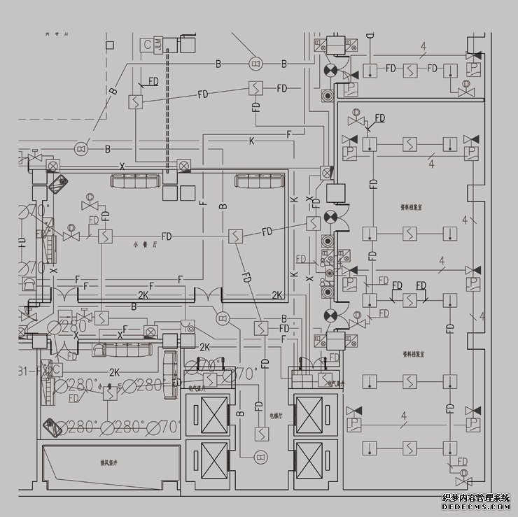
氣體滅火系統是指平時滅火劑以液體、液化氣體或氣體狀態存貯于壓力容器內,滅火時以氣體(包括蒸汽、氣霧)狀態噴射作為滅火介質的滅火系統。并能在防護區 空間內形 成各方向均一的氣體濃度,而且至少能保持該滅火濃度達到規范規定的浸漬時間,實現撲滅該防護區的空間、立體火災。
同類文章排行
- 消防工程施工中建筑物的耐火等級防火分區、防火間距及疏散出口知識點
- 中控室改造升級指南:2026年北京消防工程施工*新標準與案例
- 為什改動消防噴淋必須要有消防資質的公司?
- 消防安裝施工費用怎么算。多少錢一平米?
- 消防工程消防設施的雙電源如何和配置?
- 酒店消防設施升級改造費用如何計算?大約多錢每平米?
- 億杰消防維保通過系統性排查園區消防隱患規避消防檢查罰款
- 大型商超消防系統年檢攻略:省時省力的合作模式
- 北京倉庫冷庫消防規范與維保管理要求
- 酒店消防設施升級改造方案,消防改造多少錢一平方






